Cavada verifica con el club de natación los términos del proyecto de la piscina cubierta de constitución
Tras constatar que reúne todas las necesidades técnicas y deportivas planteadas por el Club en reuniones previas, el documento se ha firmado y enviado hoy a Contratación.
La alcaldesa, Patricia Cavada, se ha reunido hoy con representantes del Club de Natación de San Fernando para verificar que el pliego de condiciones para la redacción del proyecto de la piscina cubierta en la avenida de la Constitución recoge todas las necesidades deportivas y técnicas planteadas en las reuniones mantenidas con anterioridad con dicha entidad. Tras constatar que cumple con todos los requisitos demandados, el documento se ha enviado a Contratación como paso previo a su licitación.
La reunión se ha mantenido con el presidente de la Federación Andaluza de Natación, Francisco Olmo, y el presidente del Club de Natación de San Fernando, Clemente Ruiz, quienes han agradecido el compromiso firme de la alcaldesa y del equipo de gobierno con la piscina. De hecho, en los últimos meses se han estado barajando diferentes opciones y posibilidades de piscina cubierta con el Club para determinar las condiciones que han sido finalmente recogidas en el pliego elaborado por el equipo de Urbanismo, que ha sido firmado y enviado a Contratación en el día de hoy.
Esto supone un paso importante que permitirá que, en los próximos meses, la nueva piscina cubierta de Constitución se publique en la Plataforma de Contratación del Sector Público y se inicie el procedimiento de licitación para su construcción.
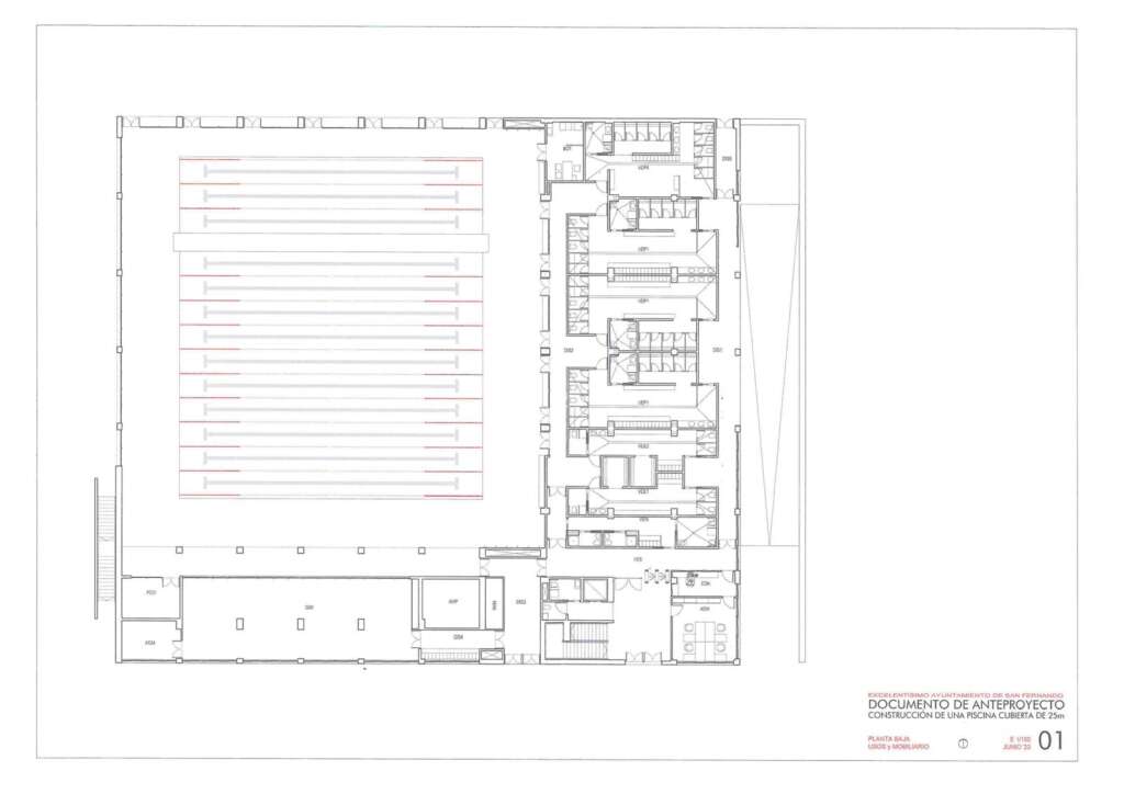
El pliego técnico es un amplio documento muy completo que se ha elaborado tomando como referencia buenos ejemplos de otros municipios, indicaciones de los usuarios y de los clubes deportivos con todas las características técnicas y los planos de referencia para el desarrollo del proyecto final. La piscina se situará en una parcela de la avenida de la Constitución, junto a la Comisaría de Policía Nacional.
El presupuesto máximo de licitación de las obras asciende a 5,5 millones de euros, de los que 136.409,59 euros corresponden a la redacción del proyecto, que incluye el estudio geotécnico, arqueológico y ambiental. El plazo máximo de ejecución de los trabajos de redacción es de siete meses.
Como ha avanzado la alcaldesa, el pliego recoge que el edificio de la futura piscina cubierta debe ser concebido desde un primer momento como un espacio de ocio, deporte y reunión para el ciudadano, previendo la posibilidad de acoger a un gran número de personas ante grandes eventos deportivos que eventualmente puedan tener lugar en el mismo.
El proyecto presta especial atención también a los accesos y el espacio libre circundante, debiendo tener en cuenta criterios de sostenibilidad desde el punto de vista medioambiental, en la arquitectura y el espacio público.
En cuanto al área de piscina, atendiendo a las necesidades planteadas por el Club de Natación de San Fernando, se diseñará un único vaso en el que se distinguirán dos zonas: una de 25 por 25 metros con diez calles de natación con una anchura de 2,5 metros. Tendrá una profundidad máxima de 2 metros y 1,8 metros en cada calle, y otra zona de 25 metros por 8 con tres calles para usar como zona de calentamiento y para la práctica de otras actividades lúdicas. La profundidad de este vaso será de 1,2 metros. Ambas zonas estarán divididas por un puente móvil de una anchura de un metro, el cual podrá desplazarse según las necesidades de uso.
La superficie útil total para la zona de piscina será de 1.225 metros cuadrados como mínimo, aunque dicho espacio podrá incrementarse según la distribución final del resto de elementos a construir.
Por otra parte, habrá una zona de vestuarios, duchas y aseos de unos 600 metros cuadrados, que incluirá femeninos y mixtos destinados exclusivamente a niños y a personas con movilidad reducida. Igualmente, se destinarán unos 400 metros cuadrados a la sala técnica de instalaciones, almacén y botiquín.
Igualmente, el pliego contempla un graderío para el público de unos 400 metros cuadrados con una capacidad para entre 200 y 300 personas. Asimismo, la futura piscina cubierta dispondrá de una zona multiusos bajo el graderío para gimnasio, fitness y otro tipo de actividad deportiva interior.
Esta piscina, que permitirá que casi 20.000 vecinos y vecinas del entorno tengan acceso a un equipamiento deportivo de primer nivel, se suma a las existentes en la Magdalena, en el complejo deportivo municipal de Bahía Sur y a la que existe de iniciativa privada en Compañía de María. Dada la gran demanda de la práctica de natación en la ciudad por los efectos beneficiosos que tiene para la salud, el Ayuntamiento ha entendido como una oportunidad ampliar la oferta destinada a este deporte en todas sus modalidades, tanto a nivel competitivo como de ocio para toda la población isleña.
Con esta actuación, se demuestra que este está siendo el mandato de los grandes equipamientos deportivos de la ciudad. Al hilo de ello, cabe recordar que el estadio de fútbol se encuentra ya pendiente de firma y que, tras quedar desierto, el estadio de atletismo volverá a salir próximamente a licitación con la cantidad económica incrementada, cumpliendo con los compromisos adquiridos con los clubes.







